1、概述
BED系列隔爆型電力液壓推動器(以下簡稱“推動器”)主要適用于操作隔爆型電力液壓塊式制動器及操動唧筒、棘輪、閥等,還可操動各種形式的杠桿裝置,作出各種不同的運動,如往復、搖擺、圓周運動等,是引進EMG公司先進技術和工藝。
執行/JZJC02-2015煤礦用隔爆型電力液壓推動器企業標準的產品,隔爆標志為“Exd Ⅰ Mb”用于煤礦井下(應置于峒室中》有瓦斯、煤塵的爆炸性氣體混合物環境,工作條件應符合《煤礦安全規程》(2011年)的規定,產品符合國家GB3836-2010標準。
執行企業標準Q/JZJC01-2015工業用防爆型電力液壓推動器技術條件的產品,隔爆標志為"Exd ⅡC T4 Gb"用于IIA, IIB,IIC(II類A級,II類B級、II類C級)表面溫度組別為T 1一T4組別的爆炸性氣體環境。產品符合國家GB 3836-2010標準.
推動器是實現某些機械設備半自動化、自動化的理想元件,活塞桿采用先進的防護,可減少磨損和腐蝕,有雙層防護密封、液壓系統的油腔采用雙層密封圈,從而從提高了推動器的使用壽命,該推動器具有動作平穩無噪音,耗電少,使用壽命長,維修方便等優點。
2.使用條件
2.1、環境溫度為-20 ℃ ~ +40 ℃
2.2、安裝地點濕月的月平均大相對濕度不大于95%。
2.3、電源為三相交流電源,頻率為50Hz, 60 Hz, 隔爆dII類推動器電壓為127V、220V、380V、660V,隔爆dI類推動器電壓為38OV/660V、660V/1140V允許電壓波動為-10 % ~+10%。電機絕緣等級F級,為S1連續工作制。
2.4、周圍環境的污染等級允許為3級。
2.5、海拔高度符合GB755一2000。不超過2000M.
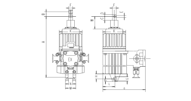
3結構及工作原理:
BED-ELS系列電力液壓推動器主要由隔爆電機、中間法蘭、葉輪、成套活塞等組成。接通推動器電源,電機旋轉帶動葉輪產生壓力油,推動活塞及連桿向上運行。達到預定行程后維持其推力。電源斷開,電機及葉輪停止轉動不再產生壓力油,活塞及連桿在外力作用下恢復原位。(見圖一)

4型號命名規則
BED □ / □- □ □
![]()
![]()
![]()
![]()
![]()
電壓等級、單位為伏特(V)
爆炸性氣體環境代號 dⅠ或dⅡ
額定行程代號
額定推力代號
系列代號
型號 | 行程 | 額定推力(N)
| 制動彈簧力(N)
| 動作時間 | 額定功率(W) | 大頻率 | 重量
| |
上升(S) | 下降 (S) | |||||||
BED-30/5 | 50 | 300 | 270 | 0.4 | 0.36 | 200 | 1500 | 27 |
BED-50/6 | 60 | 500 | 460 | 0.60 | 0.58 | 330 | 1500 | 37 |
BED-80/6 | 60 | 800 | 750 | 0.60 | 0.58 | 330 | 1500 | 38 |
BED-l21/6 | 60 | 1250 | 1200 | 0.60 | 0.58 | 365 | 1500 | 50 |
BED-201/6 | 60 | 2000 | 1900 | 0.60 | 0.58 | 450 | 1500 | 50 |
BED-301/6 | 60 | 3000 | 2700 | 0.74 | 0.5 | 550 | 1500 | 50 |
BED-50/12 | 120 | 500 | / | 1.02 | 0.72 | 330 | 900 | 57 |
BED-80/12 | 120 | 800 | / | 0.83 | 0.65 | 330 | 900 | 58 |
BED-121/12 eEELS | 120 | 1250 | / | 0.99 | 0.81 | 365 | 900 | 68 |
BED-201/12 | 120 | 2000 | / | 1.10 | 0.65 | 450 | 900 | 68 |
BED-301/12 | 120 | 3000 | / | 1.31 | 0.64 | 550 | 900 | 70 |
5、技術參數
注:1、推動器內置上表制動彈簧時,輸出的推力為零。 2、具體性能參數見推動器銘牌。
外形及安裝尺寸 (見圖二) 1)公差





